Уже чем вагон метро: в Лондоне продается самый тонкий дом (фото)

дом в лондоне
Дом в районе Кенсингтон в Лондоне

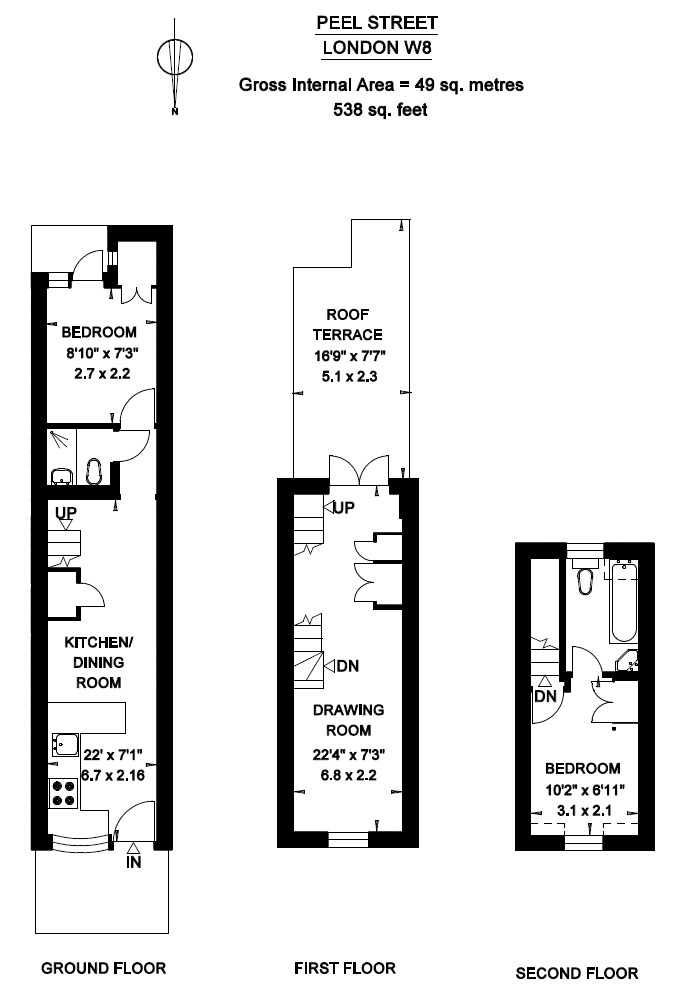
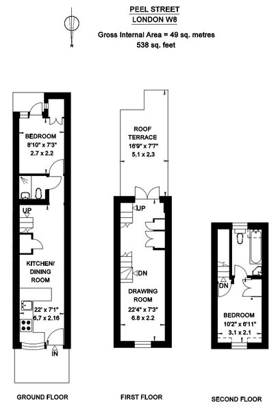
Узкий дом с двумя спальнями, двумя ванными комнатами и большой террасой выставлен на продажу по цене £1 195 000, то есть примерно 66,2 млн грн.

Дом шириной всего в 213 см вышел на рынок Лондона с ценником, превышающим £1m. Причудливая недвижимость общей площадью в 49 квадратных метров расположена в шикарном районе Ноттинг-Хилл-Гейт, всего в двух шагах от Кенсингтонского дворца, пишет Daily Star.

Жилье было построено примерно в 1930 году. Через 20 лет в нем провели косметический ремонт, добавив изысканные детали, в том числе вход с цинковым навесом и изготовленный на заказ водосточный желоб с головой дракона.

За витражной входной дверью находится кухня и обеденная зона открытой планировки с паркетным полом. На первом этаже находится душевая и туалет, а также одна из двух спален. На втором этаже есть терраса для обедов на свежем воздухе, а в приемной есть декоративный камин. На верхнем этаже расположена вторая спальня со створчатым окном, рядом с просторной ванной комнатой.

Відео дня

Управляющий партнер Unique Property Company Саймон Стоун, которая продает дом, охарактеризовал объект как "не похожий ни на что во всем Лондоне". И хотя его ширина внутри составляет всего семь футов, что даже не соответствует типичной восьмифутовой ширине лондонских вагонов метро, это удивительно пригодное для использования пространство, — считает риэлтер.

Кроме того, высота потолков выше, чем ожидают покупатели и благодаря этому данный таунхаус станет идеальным домом для одного человека или пары, — отмечает он.

Фокус писал, что в небольшом курортном городке Перранпорт на северном побережье графства Корнуолл за 300 000 фунтов стерлингов наличными продается коттедж с могилой в саду.

А во Франции за 318 000 евро, то есть примерно 15,6 млн грн продается исторический монастырь XI века с четырьмя спальнями, одной ванной комнатой и собственным лепрозорием.