Власти Киева рассказали, где будет сделан капитальный ремонт дорог в 2019 году
В КГГА пообещали, что 2019 дорожно-строительный сезон будет насыщенным
Дорожно-строительный сезон 2019 будет насыщенным: дорожники завершат масштабные работы как на переходных объектах 2018-2019 годов, так и начнут работы на новых, важных для столицы объектах.
Об этом сообщил генеральный директор КК "Киевавтодор" Александр Густелев, передает пресс-служба КГГА.
Будет завершено полный комплекс работ на улицах Алматинской, Заболотного, Семьи Кульженко, Туполева, проспектах Палладина и Правды. Долгожданный капитальный ремонт начнется на улицах Борщаговской, Милославской, Богдана Хмельницкого, Терещенковской, проспектах Степана Бандеры и Космонавта Комарова, Столичном шоссе.
Кроме того, работы по реконструкции ожидают Пейзажную аллею и улицу Федорова.
- ЧИТАЙТЕ ТАКЖЕ: Обещанного три года ждут. Как среднесрочное бюджетное планирование поможет ремонтировать украинские дороги
Другим важным объектом 2019 станет начало строительства автомобильной дороги между ул. Довбуша и Броварским проспектом.
Строительство новой дороги качественно улучшит транспортное сообщение микрорайона ДВРЗ, ведь на сегодняшний день единственным сообщением для всех его жителей остается ул. Алматинская.
акже в 2019 году активно продолжаться работы по ремонту искусственных сооружений. В частности, будет капитально отремонтировано путепровод на пересечении ул. Богатырской и просп. Степана Бандеры, путепровод на пересечении ул. Богатырской и Оболонского проспекта, Борщаговский путепровод и тому подобное.
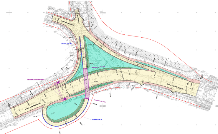
Кроме того, начнется реконструкция транспортной развязки на пересечении бульвара Вернадского - ул. Ефремова с просп. Палладина и на примыкании ул. Старонаводницкой и ул. Лаврской до бульвара Дружбы Народов.
Положительная новость ожидает и сторонников двухколесного транспорта - строительство велодорожки на Набережном шоссе.
Также устройство велодорожек предусмотрено на улицах Борщаговской, Милославской, Чернобыльской, просп. Степана Бандеры и Космонавта Комарова, Столичном шоссе и других.
Напомним, в 2019 году в Украине планируют отремонтировать и построить около четырех тысяч километров дорог.
В этом году ожидается рекордное финансирование дорожной отрасли.