Підтримайте нас

МИ В СОЦМЕРЕЖАХ:

Секретная резиденция Путина: расследователи показали, как она выглядит (фото, видео)

секретна дача путіна, резиденція путіна, володимир путін
Розслідувачі показали на відео місце, куди приїжджає кататися на лижах Володимир Путін | Фото: Известия

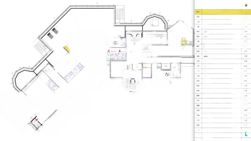
У зимовій резиденції, стверджують розслідувачі, є панорамний ліфт, соляна кімната, кілька барів, кріокімната, приміщення для перегляду відеофільмів.

Президент Росії Володимир Путін має елітну секретну резиденцію недалеко від Сочі. Про це повідомляє "Навальний LIVE".

Розслідувачам вдалося знайти цілий житловий комплекс, до якого російський лідер приїжджає взимку покататися на лижах.

У будинку всього 4 поверхи: два над землею та ще два підземні. Загальна площа президентської резиденції становить 3800 кв. метрів.

У зимовій резиденції Путіна є панорамний ліфт, соляна кімната, кілька барів, кріокімната, приміщення для перегляду відеофільмів.

На території резиденції розташовані фінська сауна, басейни з холодною та гарячою водою, аквазона, а також окремий масажний кабінет.

Відео дня

За словами журналістів, одні тільки світильники в резиденції коштують понад півмільйона рублів.

Розслідувачам також вдалося з'ясувати, що біля зимової резиденції Путіна на Червоній галявині встановили "Панцир-С1" (засіб ППО — ред.). Його розмістили біля того місця, де російський президент любить кататись на лижах.

За кілометр від протиракетної установки знаходиться комплекс будівель на 20 га землі з вертолітним майданчиком та власним підйомником.

До речі, весь комплекс будівель за документами належить російському "Газпрому".

Розслідувачам також вдалося дізнатися, що резиденції президента РФ охороняють системи ППО "Панцир С-1". Зокрема комплекси "Панцир-С1" охороняють не лише роботу президента країни-агресора у Кремлі, а і його дозвілля. Зокрема, ЗРК закривають небо у районі секретної резиденції Путіна у Червоній Поляні.

Нагадаємо, у квітні 2021 року ми інформували про те, що команда Олексія Навального випустила розслідування про "таємну дачу" Володимира Путіна. За інформацією, "дача Путіна" знаходиться в Новгородській області, займає 150 гектарів і належить другу президенту РФ Юрію Ковальчуку, у якого Управління справами президента маєток і орендує.